× Contato por whatsapp

Terreno Exclusivo no Golf Village – Local Privilegiada e Alto Potencial

Área Cód. 2004
Pousada dos Bandeirantes, Carapicuíba - SP

Terreno Exclusivo no Golf Village – Local Privilegiada e Alto Potencial Oportunidade única para construir a casa dos seus sonhos no prestigiado Golf Village! • Área total: 500,12 m² • Valor: R$ 720.000,00 Terreno plano, com excelente posição dentro do condomínio, ideal para projetos modernos e sofisticados. Viva com exclusividade, segurança e uma infraestrutura completa ao redor. Entre em contato para mais informações!

FAZENDINHA - Área 2.635 m² c/ PROJETO APROVADO condomínio 4 casas!

Área Cód. 1261
Fazendinha Granja Viana, Carapicuíba - SP

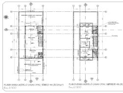
FAZENDINHA - Área 2.635 m² c/ PROJETO APROVADO p/ condomínio de 4 casas!ESTUDA PARCERIA POSSUI ALVARÁ PARA INÍCIO IMEDIATO DA OBRA Oportunidade para incorporadores.Valor estimado do VGV p/ o projeto atual: (PP informa diretamente p/ interessado).Terreno 80% plano, com parte em aclive suave na frente, e declive suave nos fundos.São 2.635m² com 30,5 metros de frente para rua e área de preservação, 80 metros nas laterais e 30 metros nos fundos.Vista deslumbrante - frente para APP e fundos para o verde da Fazendinha!Vizinho de muro com a Escola da CarolO terreno se apresenta sem vegetação e com terraplenagem pronta.Projeto aprovado para 4 casas térreas com 185m² cada, pronto para iniciar construção!

2.635,00 m²

Cond. Terra Nobre - Lote 129,69m² - (Q.A-L.30-Fase 3) Km 37,6 Rap. Tavares

Área Cód. 1133
Sítio Boa Vista, Cotia - SP

Cond. Terra Nobre - Lote 129,69 m² - Quadra A / Lote 30 / Fase 3 - PRONTO PARA CONSTRUIR! Km 37,6 Rap. Tavares Descrição do imóvel: VENHA CONHECER ESTE LINDO LOTE QUITADO NO RESIDENCIAL TERRA NOBRE, EM COTIA!Uma ótima oportunidade com 129,69 m² de terreno.Lugar ideal para realizar seu sonho de morar ou investir.Ótima localização no Km 37 da Rodovia Raposo Tavares em Cotia..Próximo de escolas, hospitais, UPAS e supermercados.Centro Comercial do RT 37, com farmácia, lanchonete, e outros serviços de conveniência.Abastecimento: Sabesp.Esgoto: Sabesp.

129,69 m²

Área 500 mil m² - V.G.Paulista (Km 44,5 R.Tavares) PROMOÇÃO

Área Cód. 1260
Capela de São Pedro, Vargem Grande Paulista - SP

Área 500.000 mil m² - Vargem Grande Paulista, Km 44,5 Raposo Tavares(EM ÁREA URBANA, IDEAL PARA CONDOMÍNIO, LOTEAMENTO ECOLÓGICO, ETC.) Opção A  R$ 12.000.000,00 Pagamento em dinheiro sendo 30% vista e restante em até 48x Opção B 40% do VGV sendo 20% sinal a vista  20% em unidades no local  60% em permuta financeira a combinar Opção C R$7.500.000,00 Pagamento a vista até dia 20/11/2025 ESTUDA-SE PARCERIAS CERTIFICADO DE USO E OCUPAÇÃO DO SOLO ZONEAMENTO | ZCU - ZONA DE CONTENÇÃO URBNA.  LOCALIZAÇÃO Acesso pelo Km 44,5 Rodovia Raposo Tavares, pelo lado direito, sentido interior - Itapevi.5 minutos pela estrada da Bonanza - Jd. São Marcos - Vargem Grande Paulista -SP.Pontos de referência: Mercearia Bonanza, Residencial Bonanza II e Empresa Rhino-tec.Com asfalto a 20m da entrada da propriedade.Glebas 4 e 5 vendidas separadamente, vide mapa no álbum de fotos  ÁREAS DE INFLUÊNCIA CIDADES PRÓXIMAS - Sentido interior (km) Vargem Grande Paulista 3,6São Roque 24,5Ibiúna 30,2  CIDADES PRÓXIMAS - Sentido capital (km) Itapevi 13,2Cotia 15,5Barueri 24,9Osasco 35,0São Paulo 47,7  EMPREEMDIMENTOS DA REGIÃO – Distâncias Catarina Fashion Outlet (41 km) - Rodovia Castelo Branco km 60, Fluxo anual de 3 milhões de visitantes, sendo 55% do público classe “A”.Aeroporto Executivo (48,7km). Capacidade para 200 mil pousos e decolagens por ano. Com voos nacionais e internacionais. Autorização da Anac para exploração comercial e abertura ao tráfego aéreo público.Helipark Granja Viana (29,5km).Centro Logístico Raposo Tavares (8,9km).Shopping Granja Vianna (24,8km) .Animália Park (11,1km).  INSTITUIÇÕES DE ENSINO NAS PROXIMIDADES UNIVERSIDADES Cruzeiro do Sul (21,7km)Anhembi Morumbi (4km)UNIP (4km)Estácio (14,2km))FAEESP (15,3km)UNINTER (21,7km)  ESCOLAS DE ENSINO FUNDAMENTAIS, MÉDIO, INFANTIL E CRECHE. Anglo (2,7km)Objetivo (6,2km)Objetivo Kids (7,5km)  ESCOLAS DE IDIOMAS CNA (5,8km)CCAA (13km)FISK (6,3km)WIZARD (12,7km)

500.000,00 m²

Km 36 Rap. Tavares - Área para Incorporação - 18.455m²

Área Cód. 987
Taboleiro Verde, Cotia - SP

Km 36 Rap. Tavares - Área para Incorporação (loteamento / condomínio) ou Chácara 18.455m² Área ideal para Incorporação (loteamento, condomínio).ZCEU - Zona de Contenção à Expansão Urbana (conforme Cert. Diretrizes emitida em Set/23)Na área vizinha já está saindo um loteamento.Ideal também para Chácara.Ótima Localização na Região de Cotia.Ligação Sabesp + poço artesiano.Frutíferas: limão, mexerica, laranja.Possui as seguintes construções:Uma casa antiga com 4 dormitórios, sala, varanda, cozinha e banheiro.Uma Edícula com 2 cômodos banheiro e depósito.Galpão / Garagem para 6 vagas cobertas.Acesso pelo KM 36 ou 39 da Rodovia Raposo Tavares.Distante 4 km do Centro de Cotia.Uma região com potencial turístico em expansão:▪ Restaurante A Quinta do Bacalhau: http://www.aquintadobacalhau.com.br/Novo Zoo e Parque de Divesões: Animália Park https://animaliapark.com.br/Parque aquático Thermas da Mata https://www.thermasdamata.com.br/Shopping Central Park Plaza Shopping - prev. Out/23 https://www.centralparkplazashopping.com.br/

18.455,00 m²

ÁREA 63.202,79 m² às margens da Rod. Regis Bittencourt - Km 297 + 150 m

Área Cód. 937
Itaquaciara, Itapecerica da Serra - SP

ÁREA 63.202,79 m² às margens da Rod. Regis Bittencourt - Km 297 + 150 m Endereço do imóvel: Rodovia Regis Bittencourt, Km 297 + 150 m - sentido São Paulo (Bairro postal: Itaquaciara, Itapecerica da Serra, SP - CEP: 06880-700 (Acesso pela rua lateral)Área total: 63.202,79 m²Valor de venda: R$ 8.220.000,00 (oito milhões, duzentos e vinte mil reais), com comissão de 6% (seis por cento) DOCUMENTOS AMBIENTAIS Certidão (Prefeitura Iatp. da Serra) de Uso e Ocupação do SoloParecer técnico-ambiental (demanda Laudo de Vegetação para constatação do real potencial de ocupação da área)DESCRIÇÃO DO IMÓVEL: Área com 63.202,79 m². Frente para a Rodovia Reggis Bittencourt (Km 297 +110m). 12 km de distância do acesso ao Rodoanel Mario Covas CARACTERÍSTICAS DO ZONEAMENTO: Macrozona - Eixo Empresarial Metropolitano Parte em: Zona Especial de Proteção Ambiental: ZEPA 1 Parte em: Zona de Fundo da Macrozona do Eixo Metropolitano: ZFMEM Lote mínimo para Parcelamento e Adensamento: ZEPA 1: 1.000,00 m² / ZFMEM: 5.000,00m² Coeficiente de Aproveitamento Máximo (CAM): 1.0 Índice de Impermiabilidade do Solo (IP): 0.2 Permitida na ZEFEM a atividade de Construção de Galpões Industriais e Logística

63.202,79 m²

2 Glebas 20 mil m² cada - Vargem G. Paulista, Km 44,5 R. Tavares

Área Cód. 1243
Capela de São Pedro, Vargem Grande Paulista - SP

2 GLEBAS c/ 20.000 mil m² cada - Vargem Grande Paulista, Km 44,5 Raposo Tavares(EM ÁREA URBANA, IDEAL PARA CONDOMÍNIO, LOTEAMENTO ECOLÓGICO, ETC.) (R$ 770 mil CADA GLEBA) OPORTUNIDADE! Documentação: EM PROCESSO DE USUCAPIÃO EXTRAJUDICIAL - Em breve já teremos a MatrículaPara informações mais detalhadas, colocaremos o Corretor em contato direto com os PPs CERTIFICADO DE USO E OCUPAÇÃO DO SOLO ZONEAMENTO | ZCU - ZONA DE CONTENÇÃO URBNA.  LOCALIZAÇÃO Acesso pelo Km 44,5 Rodovia Raposo Tavares, pelo lado direito, sentido interior - Itapevi.5 minutos pela estrada da Bonanza - Jd. São Marcos - Vargem Grande Paulista -SP.Pontos de referência: Mercearia Bonanza, Residencial Bonanza II e Empresa Rhino-tec.Com asfalto a 20m da entrada da propriedade.Glebas 4 e 5 vendidas separadamente, vide mapa no álbum de fotos  ÁREAS DE INFLUÊNCIA CIDADES PRÓXIMAS - Sentido interior (km) Vargem Grande Paulista 3,6São Roque 24,5Ibiúna 30,2  CIDADES PRÓXIMAS - Sentido capital (km) Itapevi 13,2Cotia 15,5Barueri 24,9Osasco 35,0São Paulo 47,7  EMPREEMDIMENTOS DA REGIÃO – Distâncias Catarina Fashion Outlet (41 km) - Rodovia Castelo Branco km 60, Fluxo anual de 3 milhões de visitantes, sendo 55% do público classe “A”.Aeroporto Executivo (48,7km). Capacidade para 200 mil pousos e decolagens por ano. Com voos nacionais e internacionais. Autorização da Anac para exploração comercial e abertura ao tráfego aéreo público.Helipark Granja Viana (29,5km).Centro Logístico Raposo Tavares (8,9km).Shopping Granja Vianna (24,8km) .Animália Park (11,1km).  INSTITUIÇÕES DE ENSINO NAS PROXIMIDADES UNIVERSIDADES Cruzeiro do Sul (21,7km)Anhembi Morumbi (4km)UNIP (4km)Estácio (14,2km))FAEESP (15,3km)UNINTER (21,7km)  ESCOLAS DE ENSINO FUNDAMENTAIS, MÉDIO, INFANTIL E CRECHE. Anglo (2,7km)Objetivo (6,2km)Objetivo Kids (7,5km)  ESCOLAS DE IDIOMAS CNA (5,8km)CCAA (13km)FISK (6,3km)WIZARD (12,7km) 520 / 889 / 777 / 318798 / 54121381948

20.000,00 m²

Área (ZUM) com 16.537 m² - Altura Km 29 Rod. Rap. Tavares

Área Cód. 1166
Parque Alexandre, Cotia - SP

Área (ZUM) com 16.537 m² - Altura Km 29 Rod. Rap. Tavares Área por 3 terrenos contíguos, totalizando de 16.537,71 m², sendo:13.319 utilizáveis e 3.218 m² de área de preservaçãoFormado por 3 terrenos:Terreno1: 12.655,07 m²Terreno 2: 3.550,00 m²Terreno 3: 332,64 m²Aproximadamente 200 metros de frente para R Dr Ladislau Retti.Grande platô na parte central do lote.Área de preservação comZona de Uso Misto (ZUM), vizinha a diversas fábricas e centros logísticos.

16.537,71 m²

CAPUAVA - Área 2.996 m² c/ PROJETO c/ ALVARÁ p/ condomínio de 10 casas!

Área Cód. 1262
Capuava, Embu das Artes - SP

CAPUAVA - Área 2.996,00 m² c/ PROJETO APROVADO p/ condomínio de 10 casas! Oportunidade para investidores!Valor estimado do VGV: aguardando informaçãoProjeto e alvará de construção de condomínio fechado para 10 sobrados.Toda a questão ambiental (CETESB) finalizada.O terreno se apresenta limpo, sem vegetação - possui pequena reserva nativa.Terreno com leve aclive, com linda lista para o verde.São 2.996,00 m² com 100 metros de frente, esquina da Estrada do Capuava x Passagem PaineirasNa rua da Escola Bem Viver - Waldorf (aprox. 150 m) e vizinho ao Cond. Vintage.Altitude aproximada: 850m.Pronto para iniciar construção!Descrição do PROJETO APROVADO: Condomínio: Condomínio fechado e com muros altos.10 casas (sobrados).Rua interna de 8 metros de largura, conforme legislação do Embu das Artes.Salão de festas com cozinha e banheiro.Reserva de mata nativa própria.Rua sem saída.Condomínio afastado, em rua com diversas casas e chácaras.Unidades: Sobrado c/ 91,60 m² de área.3 dormitórios, sendo uma suíte.Vista das suítes para o Arautos do Evangelho de CotiaQuintal individual com mais de 30m²2 banheiros + 1 lavaboVaga descoberta para 2 carros

2.996,00 m²

ÁREA 22.304,54 m² às margens da Rod. Regis Bittencourt - Km 297 + 110 m

Área Cód. 908
Itaquaciara, Itapecerica da Serra - SP

ÁREA 22.304,54 m² às margens da Rod. Regis Bittencourt - Km 297 + 110 m Área com 22.304,54 m².Ffrente rodovia: 79,96 m x 117 m nas lateraisFrente para a Rodovia Reggis Bittencourt (Km 297 +110m).12 km de distância do acesso ao Rodoanel Mario CovasCARACTERÍSTICAS DO ZONEAMENTO:Macrozona - Eixo Empresarial MetropolitanoZona: De Fundo (ZOFU).Lote mínimo para Parcelamento e Adensamento: 1.000,00 M²Coeficiente de Aproveitamento (CA): 1.0Índice de Impermiabilidade do Solo (I.IMP): 0.8

22.304,54 m²