Clique no ícone para esconder o bloco de informação que não queira imprimir.
IMPRIMIR

(11) 95967-0490 | (11) 98812-7208
Elitte Imoveis Granja Viana
Estrada Fazendinha, 6600 - Pousada dos Bandeirantes
Elitte Imoveis Granja Viana
Estrada Fazendinha, 6600 - Pousada dos Bandeirantes
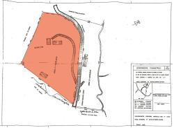
Km 36 Rap. Tavares - Área para Incorporação - 18.455m²
Venda: R$ 7.000.000,00
Código: 987



VendaR$ 7.000.000,00
- Estuda permuta
Km 36 Rap. Tavares - Área para Incorporação (loteamento / condomínio) ou Chácara 18.455m²
- Área ideal para Incorporação (loteamento, condomínio).
- ZCEU - Zona de Contenção à Expansão Urbana (conforme Cert. Diretrizes emitida em Set/23)
- Na área vizinha já está saindo um loteamento.
- Ideal também para Chácara.
- Ótima Localização na Região de Cotia.
- Ligação Sabesp + poço artesiano.
- Frutíferas: limão, mexerica, laranja.
- Possui as seguintes construções:
- Uma casa antiga com 4 dormitórios, sala, varanda, cozinha e banheiro.
- Uma Edícula com 2 cômodos banheiro e depósito.
- Galpão / Garagem para 6 vagas cobertas.
- Acesso pelo KM 36 ou 39 da Rodovia Raposo Tavares.
- Distante 4 km do Centro de Cotia.
Uma região com potencial turístico em expansão:▪
- Restaurante A Quinta do Bacalhau: http://www.aquintadobacalhau.com.br/
- Novo Zoo e Parque de Divesões: Animália Park https://animaliapark.com.br/
- Parque aquático Thermas da Mata https://www.thermasdamata.com.br/
- Shopping Central Park Plaza Shopping - prev. Out/23 https://www.centralparkplazashopping.com.br/